لیست محدود برنامه
مواد دمای متوسط ℃ مواد دمای متوسط ℃
PVC-C -20 ~ 95 ℃ PVC-U -5 ~ 45 ℃
FRPP -20 ~ 120 ℃ PPH -20 ~ 110 ℃
PVDF 40 ~ 150 ℃

ویژگی های ساختاری محصول

1. مقاومت شیمیایی برتر، محدوده دمایی 9 درجه سانتیگراد تا -20 درجه سانتیگراد سانتیگراد در محیط با استانداردهای آب فوق خالص مطابقت دارد، و خواص بهداشتی مطابق با استانداردهای بهداشت ملی است.
2. استحکام عالی، چقرمگی و مقاومت در برابر خوردگی شیمیایی.
3. دوام: پیری عالی و مقاومت در برابر اشعه ماوراء بنفش به طور قابل توجهی خدمات سرویس سایر سیستم های لوله کشی را افزایش می دهد.
4. حرارتی کم: تقریباً 1/200 فولاد. ضد شعله خود خاموش می شوند
5. سبک وزن: سبک، معادل 1/5 لوله فولادی و 1/6 لوله مسی.
6. مقاومت کم، سرعت جریان بالا: سطح لوله صاف و تمیز، اصطکاک و چسبندگی را هنگام انتقال مایعات به حداقل می رساند.
7. نصب آسان، کم هزینه: چسب و اتصالات رزوه ای در دسترس هستند، با چسب راحت ترین.

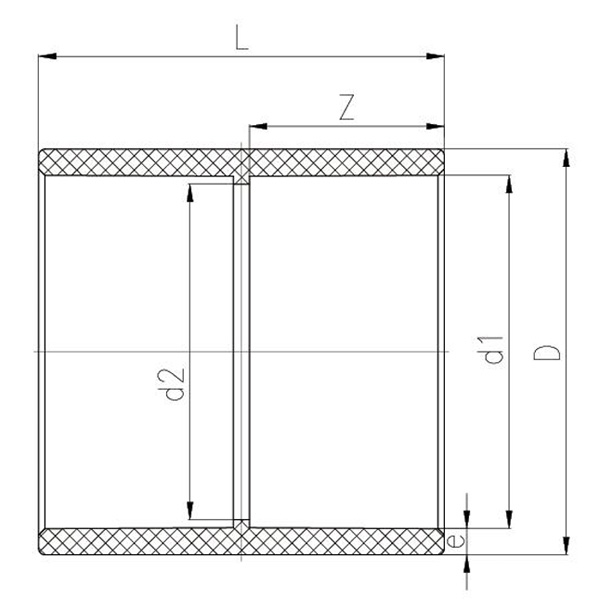
فهرست مشخصات

DN D d1 d2 L ز ه
15 27 20 18 35 16 3.5
20 32 25 23 40 18.5 3.5
25 40 32 30 47 22 4
32 50 40 38 55 26 5
40 61 50 47 65 31 5.5
50 75 63 60 80 37.5 t6
65 88 75 72 92 44 6.5
80 104 90 86 107 51 7
100 127 110 105 127 61 8.5
125 161 140 134 158 76 10.5
150 184 160 154 180 86 12
200 249 225 219 247 118.5 12
250 309 280 272 303 146 14.5
300 346 315 306 338 163. 5 15.5
350 392 355 349 380 184 18.5
400 440 400 393 430 206 20
450 494 450 430 477 231 22
500 548 500 480 527 256 24
600 692 630 600 657 321 31
700 758 710 690 737 361 22.5
800 843 800 780 830 406 20

بازخورد پیام
درباره ما
Kaixin Pipeline Technologies Co., Ltd.
در سال 1999 تاسیس شد، Kaixin Pipeline Technologies Co., Ltd. یک شرکت با فناوری پیشرفته است که تحقیق و توسعه، تولید، فروش و خدمات را ادغام می کند. این شرکت دارای چندین گواهینامه معتبر از جمله شرکت ملی فناوری پیشرفته، SME تخصصی و پیشرفته "غول کوچک"، SME قهرمان تک محصولی ملی (تزریق)، SME مبتنی بر فناوری استانی، SME تخصصی و پیچیده نینگبو، قهرمان مرکز تک محصولی نینگبو (Cultivation & Diepevel Green)، Ningbo-D Green, Ningbo-D. کارخانه، شرکت نوآوری مدیریت چهار ستاره نینگبو و توانایی مدیریت داده سازمانی سطح بلوغ 2.
ما در توسعه، تولید و عرضه محصولات غیر فلزی مقاوم در برابر خوردگی برای کاربردهای شیمیایی، از جمله دریچه های پلاستیکی، لوله ها، اتصالات لوله و پمپ های مقاوم در برابر خوردگی تخصص داریم. مجموعه محصولات ما شامل موادی مانند PVC-C، PVC-U، PVDF، PPH، و FRPP با طیف گسترده ای از انواع و مشخصات است. قابل ذکر است که قطر شیرهای پروانه‌ای ما می‌تواند به DN1000 برسد، در حالی که لوله‌ها و اتصالات تا DN800 گسترش می‌یابند و شکاف‌های بازار را برطرف می‌کنند و مزیت رقابتی خود را در صنعت حفظ می‌کنند.
با هدایت اصل "تکنولوژی محور، همگام با زمان"، Kaixin سالانه نزدیک به 10 میلیون یوان را به تحقیق و توسعه اختصاص می دهد. ما کیفیت محصول برتر را از طریق تولید خودکار استاندارد و تامین دقیق مواد خام وارداتی تضمین می کنیم. همراستا با استراتژی توسعه بین المللی خود، ما به طور مداوم روندهای بازار جهانی را رصد می کنیم و از کانال های دیجیتالی استفاده می کنیم تا محصولات باکیفیت "ساخت چین" را به مشتریان در سراسر جهان ارائه دهیم.
نینگبو • پایگاه تحقیق و توسعه و تولید Fenghua
با سرمایه گذاری کل 200 میلیون یوان، شرکت Kaixin Ultra-Pure Pipe Technology (Ningbo) یک آزمایشگاه مواد جدید با همکاری دانشگاه ها و موسسات تحقیقاتی ایجاد کرده، یک پایگاه تولید مدرن ایجاد کرده و 8 خط تولید کاملاً خودکار برای پلاستیک های اصلاح شده و 8 خط برای مواد پلیمری نصب کرده است. این مرکز به تحقیق و توسعه، تولید و استفاده از پلاستیک های اصلاح شده جدید و مواد پلیمری اختصاص دارد. Kaixin همچنین متعهد به جذب استعدادهای برتر در سراسر رشته‌ها، هدایت مداوم نوآوری محصول و توسعه نام تجاری، با هدف تبدیل شدن به یک رهبر شناخته شده جهانی در تحقیق و توسعه و تولید دریچه‌ها، لوله‌ها و اتصالات پلیمری است.
گواهی افتخار
  • honor
  • honor
  • honor
  • honor
  • honor
  • honor
  • honor
  • honor
  • honor
اخبار